Реконструкция зерноочистительных агрегатов ЗАВ
Характеристики товара:
Характеристики товара:Описание товара
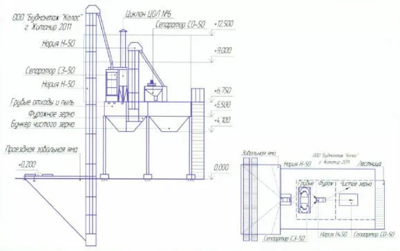
Предлагаем реконструкцию и монтаж зерноочистительных агрегатов ЗАВ и зерноочистительно-сушильных комплексов КЗС на базе использования универсальных виброцентробежных сепараторов СВ-25 (50).
Устанавливаем дополнительный наклонный въезд (пандус) и эстакаду к приёмному бункеру-транспортеру для обеспечения приема убранного комбайном вороха зерна прямо из транспортных средств большой вместимости. При проведении реконструкции учитываем оптимальное расположение в имеющейся конструкции всех агрегатов.
Эффективность реконструкции агрегатов ЗАВ и комплексов КЗС:
- технологическая и экономическая эффективность реконструкции агрегатов типа ЗАВ проведена, и ее целесообразность потдверждена Харьковской МИС;
- использование имеющегося здания;
- исключение необходимости дополнительных расходов на временное хранение зерна на площадке;
- снижение расхода топлива на процессы послеуборочной обработки;
- ограничение необходимости уборки зерна из валиков.
Продолжительность реконструкции:
- ЗАВ-20 - не более 12 дней,
- ЗАВ-40 - не более 15 дней.
Продолжительность строительства с нуля:
- ЗАВ-20 - не более 50 дней,
- ЗАВ-40 - не более 60 дней.
По вопросам реконструкции ЗАВ обращайтесь по номерам телефонов, указанных на сайте. Также у нас можно заказать строительство ЗАВ-20, ЗАВ-40, ЗАВ-100.
Оплата и доставка
- Самовывоз
- Доставка компанией Будмонтаж Колос
- Повернення і обмін Відповідно до закону України «про захист прав споживачів» ви можете протягом 14 днів з моменту покупки повернути або обміняти товар, придбаний в магазині, за умови виконання всіх норм передбачених законом. Умови обміну / повернення товару належної якості стаття 9. Відповідно до закону України «про захист прав споживачів»: споживач має право обміняти непродовольчий товар належної якості на аналогічний у продавця, у якого він був придбаний, якщо товар не задовольнив його за формою, габаритами, фасоном, кольором, розміром або з інших причин не може бути ним використаний за призначенням. Споживач має право на обмін товару належної якості протягом чотирнадцяти днів, не рахуючи дня покупки. споживач (термін вживається в такому значенні згідно статті 1. п.22 закону України «про захист прав споживачів») – фізична особа, яка купує, замовляє, використовує або має намір придбати чи замовити продукцію для особистих потреб, не пов’язаних з підприємницькою діяльністю або виконанням обов’язків найманого працівника. обмін або повернення товару належної якості провадиться: якщо не використовувався; якщо збережено його товарний вигляд, споживчі властивості, пломби, ярлики; на підставі розрахунковий документ, виданий споживачеві разом з проданим товаром. умови обміну / повернення товару неналежної якості стаття 8. Згідно із законом України «про захист прав споживачів»: в разі виявлення протягом встановленого гарантійного строку недоліків споживач, в порядку та в строки, встановлені законодавством, має право вимагати безоплатного усунення недоліків товару в розумний строк. вимоги споживача, передбачених цією статтею, не підлягають задоволенню, якщо продавець, виробник (підприємство, що задовольняє вимоги споживача, встановлені частиною першою цієї статті) доведуть, що недоліки товару виникли внаслідок порушення споживачем правил користування товаром або його зберігання. Споживач має право брати участь у перевірці якості товару особисто або через свого представника.
- Безналичный расчёт


