Будмонтаж Колос Производитель зерноочистительной техники, машины и комплексы для очистки зерна
+3806775xxxxx,
+3806844xxxxx,
+3806741xxxxx,
+3804124xxxxx,
+3804124xxxxx,
Показать телефоны

Реконструкция ЗАВ и КЗС

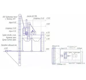
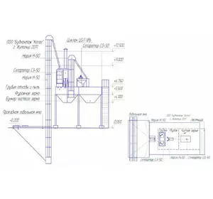
Проводим реконструкцию зерноочистительных агрегатов ЗАВ, зерноочистительно-сушильных комплексов КЗС. Устанавливаем пандусы и эстакады к приёмному бункеру, чтобы обеспечить приём убранного комбайном вороха зерна прямо из транспортных средств большой вместимости. Поднимаем работающие зерноочистительные комплексы под крупногабаритный транспорт без демонтажа.

В наличии
В наличии
В наличии
В наличии
В наличии
В наличии
В наличии
В наличии

Многие зерноочистительные комплексы в Украине были построены еще при Советском Союзе и до сих пор сохранили не только общий вид и планирование, но и давным-давно устаревшее оборудование. О высокой производительности или какой-нибудь конкурентоспособности при таком положении дел даже мечтать не приходится. Что же делать: отказаться от бизнеса, строить новый ЗАВ, ремонтировать то, что есть, или реанимировать производство с помощью реконструкции?

Мы предлагаем реконструировать, модернизировать это оборудование, чтобы повысить производительность комплексов, адаптировать старые постройки под современную технику.

Эффективность реконструкции агрегатов ЗАВ и комплексов КЗС

В комплекс работ входит:

  • поднятие зданий без демонтажа оборудования;
  • сооружение и подключение к ЗАВ, КСЗ новых емкостей, бункеров, транспортеров, норий;
  • реконструкция завальных ям;
  • улучшение погрузочно-выгрузных площадок.

Реконструкция работающих комплексов по очистке и сушке зерновых проводится в короткие сроки:

  •  ЗАВ-20 - не более 12 дней;
  • ЗАВ-40 - не более 15 дней.

Модернизация ЗАВ: плюсы такого решения

реконструкция ЗАВЗаказывая реконструкцию ЗАВ 50, 20, 40, 100, вы получаете массу преимуществ:

  • улучшаете планировку мест для загрузки и выгрузки зерна;
  • ремонтируете или изменяете конфигурацию завальной ямы;
  • увеличиваете вместимость бункеров, а также можете установить дополнительные емкости;
  • убираете старые агрегаты, а на их место устанавливаете современное оборудование, в разы повышающее качество очистки практически всех видов зерновых культур;
  • восстанавливаете работу или заменяете скребковые транспортеры, нории.

В результате у вас будет современный зерноочистительный комплекс, отвечающий требованиям рынка и способный производить продукцию конкурентного качества.

К плюсам также можно отнести более низкую стоимость, чем строительство ЗАВ, и более достойный объект, чем после обычного ремонта.

Реконструкция ЗАВ от профессионалов

Компания «Будмонтаж «Колос» известна многим украинским сельхозпроизводителям как надежный и ответственный исполнитель, с которым приятно иметь дело. Мы квалифицированно занимаемся строительно-монтажными и ремонтными работами в аграрной отрасли, поставляем эффективную и экономную зерноочистительную технику, сами вырабатываем сепараторы БЦС, транспортеры, циклоны, зернопроводы.

Таким образом, мы очень хорошо знаем свое дело и может в самые короткие сроки вывести ваш ЗАВ на совершенно новый уровень.

Чтобы заказать реконструкцию ЗАВ, КЗС или строительство зерноочистительных комплексов с нуля, обращайтесь по номерам телефонов, указанным на нашем сайте.

Контакты
  • Будмонтаж Колос
  • +3806775xxxxx
    +3806844xxxxx
    +3806741xxxxx
    +3804124xxxxx
    +3804124xxxxx
    Показать телефоны
  • Украина Житомир, Житомирская обл. ул. Чехова 1